Producenci

Kocioł piec SAS Varmo 20 kW zasypowy uniwersalny

Dostępność: na wyczerpaniu
Wysyłka w: 30 dni
Dostawa: Cena nie zawiera ewentualnych kosztów płatności sprawdź formy dostawy
Cena brutto: 8 990,00 zł
zawiera 23% VAT, bez kosztów dostawy

Cena regularna:

8990.00
Najniższa cena z 30 dni przed obniżką:
Cena netto: 7 308,94 zł
bez 23% VAT i kosztów dostawy

Cena regularna:

Najniższa cena z 30 dni przed obniżką:
ilość szt.

towar niedostępny

dodaj do przechowalni
Ocena: 0
Producent: SAS
Kod produktu: 52C6-4318C_20241021124831

Opis

Kocioł piec SAS Varmo 20 kW zgazowujący drewno, 5 klasa, EcoDesign

Kocioł VARMO PLUS o mocy 20 kW dostępny jest w wersji z czopuchem do tyłu.

Informacje podstawowe

Rodzaj: kocioł zasypowy bez sterowania
Rodzaj spalania: dolny system spalania
Moc: 10 kW, 15 kW, 20 kW, 25 kW
Paliwo: węgiel kamienny sortymentu orzech
Klasa: 5 (najwyższa, wg PN-EN 303-5:2021-09)
EcoDesign: 10 kW, 15 kW, 20 kW, 25 kW
Klasa efektywności energetycznej: B
Sprawność: 88,1÷88,8%
Materiał wymiennika: stal kotłowa P265GH o gr. 6 mm
Opcje: drzwiczki otwierane na lewą stronę (opcja za dopłatą)
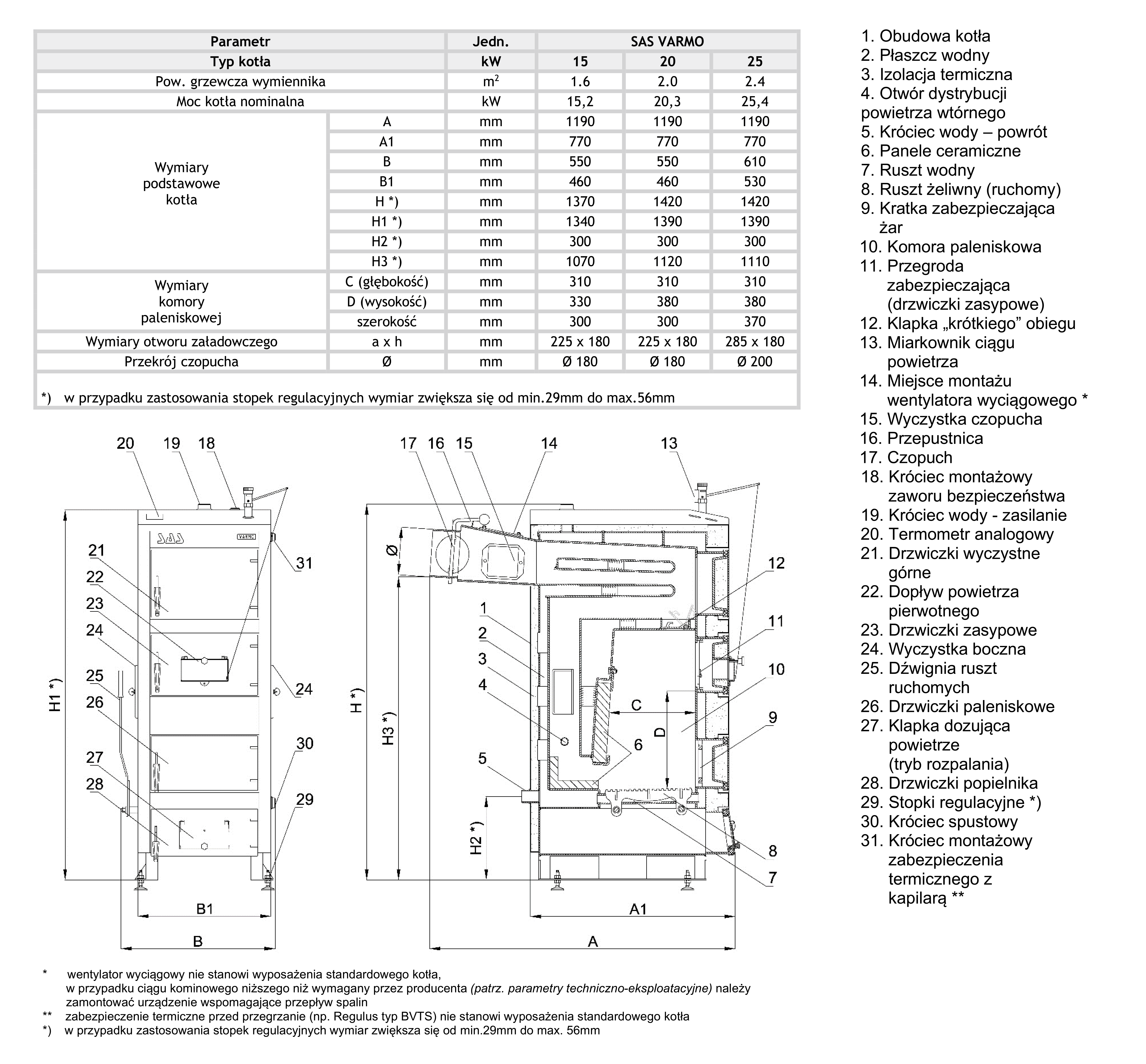
Wyposażenie: panele ceramiczne, dźwignia ruszt ruchomych , miarkownik ciągu powietrza, termometr, przegroda zabezpieczająca, kratka zabezpieczająca żar, komplet stopek regulacyjnych, komplet narzędzi do obsługi kotła, kolano nastawne z szybrem oraz wyczystką (dot. kotła o mocy 10 kW)
Wyposażenie dodatkowe: wentylator wyciągowy MplusM model WWK150/60W -dot. kotłów 10 kW; obudowa wentylatora wyciągowego -dot. kotłów 10kW; wentylator wyciągowy MplusM model WWK180/60W - dot. kotłów 15/20kW; wentylator wyciągowy MplusM model WWK180/75W - dot. kotłów 25kW; uszczelka (materiał izolacyjny) pod wentylator wyciągowy; sterownik TECH ST-28N do regulacji pracy: wentylatora wyciągowego, pompy c.o., pompy c.w.u. wraz z zestawem przewodów oraz czujników.
Ważne: W przypadku gdy ciąg kominowy jest niższy niż podany w DTR kotła, należy zamontować wentylator wyciągowy wspomagający przepływ spalin. Kotły SAS VARMO o mocach 15kW, 20kW, 25kW przystosowane są fabrycznie do montażu (w przypadku słabego ciągu kominowego) wentylatora wyciągowego (bezpośrednio na czopuchu) oraz sterownika regulującego jego pracę. W kotle SAS VARMO 10kW montaż wentylatora wyciągowego możliwy jest na odcinku przewodu spalinowego pomiędzy czopuchem kotła a wlotem do komina. Ze względy na brak fabrycznego miejsca montażu wentylatora wyciągowego bezpośrednio w czopuchu kotła SAS VARMO 10kW ewentualną konieczność montażu urządzenia wspomagającego ciąg spalin należy przewidzieć przed zainstalowaniem kotła.
Gwarancja: 4 lata na szczelność wymiennika ciepła

Dane techniczne

  • Paliwo: węgiel kamienny sortymentu orzech
  • Nominalna moc cieplna (Typ kotła): 20 kW
  • Minimalna bezpieczna pojemność zbiornika akumulacyjnego*: 1500 L
  • Klasa efektywności energetycznej: B
  • Sprawność cieplna dla mocy nominalnej***: 88,7 %
  • Klasa kotła (wg PN-EN 303-5:2012) sprawność / emisja spalin: klasa 5 (najwyższa) 
  • Zużycie paliwa**: 2,7 kg/h
  • Pojemność komory załadowczej: 36 dm² ~31 kg
  • Pojemność wodna kotła: 91 L
  • Masa kotła (bez wody): 390 kg
  • Wymagany minimalny ciąg spalin: ~0,27 mbar
  • Wymiary podstawowe kotła: 
    - głębokość: 1190 mm
    - głębokość CG****: -
    - szerokość 550 mm
    - wysokość: 1420 mm
    - wys. do czopucha: 1120 mm
  • Wymiary otworu załadowczego (axh): 225x180 mm
  • Przekrój czopucha (średnica zewnętrzna): Ø 180
  • Gwint wewnętrzny króćca (zasilanie/powrót): G 1½"
  • Minimalna wysokość komina: 8 m
  • Minimalny przekrój przewodu kominowego: 18x18cm Ø 200 mm

* Min, pojemność zbiornika akumulacyjnego obliczona zgodnie z normą PN-EN 303-5 dla zasypu pozwalającego uzyskać stałopalność TΒ=5h
** Przy pracy z mocą nominalną kotła dla paliwa dedykowanego określonego w DTR rozdz. 7. W warunkach rzeczywistych zużycie opału może różnić się od podanego w tabeli.
Wpływ na ilość spalanego opału ma m.in. jakość paliwa, rodzaj instalacji grzewczej, parametry pracy kotła, ciąg kominowy, stopień zbrudzenia wymiennika, temperatura wewnątrz i na zewnątrz ogrzewanego obiektu, izolacja budynku. Zużycie paliwa dla polana drewna o wartości opałowej 30 300 kJ/kg oraz mocy nominalnej kotła.
*** Wartość w oparciu o badania wykonane w alternatywnym laboratorium.
**** Głębokość CG - dot. kotła SAS VARMO  z czopuchem do góry.

Zalety kotła

  • Kocioł na węgiel kamienny zasypowy zgazowujący paliwo
  • Kocioł klasy 5 (najwyższa) wg normy PN-EN 303-5:2021 (10 kW)
  • Kocioł klasy 5 (najwyższa) wg normy PN-EN 303-5:2012 (15 kW, 20 kW, 25 kW)
  • Certyfikat EcoDesign (dla mocy: 10 kW, 15 kW, 20 kW, 25 kW)
  • Wysoka sprawność 88,1- 88,8% oraz efektywność procesu spalania

UWAGA

Kotły VARMO o mocy 10 kW dostępne są w wersji z czopuchem do góry. Montaż wentylatora wyciągowego możliwy jest na odcinku przewodu spalinowego pomiędzy czopuchem kotła a wlotem do komina. Ze względu na brak fabrycznego miejsca do montażu wentylatora wyciągowego bezpośrednio w czopuchu kotła ewentualną konieczność montażu urządzenia wspomagającego ciąg spalin należy przewidzieć przed zainstalowaniem kotła. W tym celu należy zweryfikować wartość wytwarzanego (istniejącego) ciągu kominowego.
 
Kotły VARMO o mocach 15 kW, 20 kW, 25 kW dostępne są w wersji z czopuchem do tyłu. Posiadają możliwość montażu wentylatora wyciągowego bezpośrednio na czopuchu.

UWAGA! Czas realizacji może wydłużyć się od 2 do 14 dni w zależności od dostępności magazynowej i czasu oczekiwania u producenta.
___

TANIEJ Z PROFESJONALNĄ USŁUGĄ MONTAŻU VAT 8%

Jeśli rozważasz zakup kotła wraz z profesjonalnym montażem, zachęcamy do kontaktu telefonicznego z naszym zespołem: 504-763-902

Nasz mobilny Doradca Techniczny oferuje:

  • Indywidualne dopasowanie urządzenia do specyfiki Twojego budynku.
  • Szacowanie całkowitych kosztów instalacji oraz adaptacji kotłowni.
  • Konsultacje dotyczące dostępnych dofinansowań.

Wycena i konsultacja dotycząca wyboru odpowiedniego urządzenia są bezpłatne. Działamy głównie na terenie województwa Świętokrzyskiego i okolicach.

Dodatkowo, zajmujemy się kompleksową instalacją ogrzewania podłogowego oraz systemów wodno-kanalizacyjnych, wykonujemy także instalacje fotowoltaiczne.

Nasza oferta obejmuje obsługę wniosków do programów rządowych, takich jak:

  • Czyste Powietrze
  • Mój Prąd
  • Moje Ciepło

Serdecznie zapraszamy do współpracy, gwarantując kompleksowe i profesjonalne wsparcie na każdym etapie realizacji projektu.

Koszty dostawy Cena nie zawiera ewentualnych kosztów płatności

Kraj wysyłki:

Produkty powiązane

Opinie o produkcie (0)

do góry
Sklep jest w trybie podglądu
Pokaż pełną wersję strony
Sklep internetowy Shoper.pl